1. Bauabschnitt Agnesstraße 27

„INTERNATIONALES HAUS“ mit 120 Wohnplätzen,

Integrierte Sprachschule der „Deutschkurse der Universität München“

Städtebaulicher Ideenwettbewerb 

mit Realisierungsteil: 1.Preis 2011 

STUDIERENDENWOHNANLAGE 

Agnes-/Adelheidstraße in München-Schwabing

 

GEIER·MAASS ARCHITEKTEN GmbH

Luftbild Bestand 2010


Der Neubauten ist Auftakt eines städtebaulichen Gesamtkonzeptes, welches mittels differenzierter Stadtbausteine eine neue städtebauliche Figur schafft, die als Synthese aus offener Bauweise der bestehenden Studentenwohnanlage und der umgebenden Schwabinger Blockbebauung konzipiert ist. 

Das neue Quartier ist mit den umgebenden öffentlichen Straßenräumen durch Öffnungen und Zugangswege räumlich und funktional vernetzt. 

Der halböffentliche Platzraum im Zentrum der Anlage bündelt die Bewegungsströme und ist für informelle Treffen und vielfältige Nutzungen geeignet.

Das „Internationale Haus“ bietet als Ort des Zusammenlebens von Studenten unter-schiedlicher Herkunft sowohl vielfältige räumliche Ange­bote zur Kommunikation mit der Gemeinschaft als auch für den Rückzug ins Private. In den Obergeschossen bieten zum Hof ausgerichtete möblierte Laubengänge kommunikative Räume hoher Aufenthaltsqualität.

Lageplan 1. und 2. Bauabschnitt

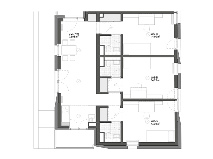
Grundriss 2. Obergeschoss

Ansicht Nord

3-Zi. Wohngemeinschaft

1-Zi. Apartment

6-Zi. Wohngemeinschaft

Die Website verwendet Cookies Bitte die Datenschutzerklärung für mehr Details lesen.

Setzt ein technisches Cookie, das aufzeichnet, dass Sie die Zustimmung verweigern. 

Es wird nicht nochmals nachgefragt werden.

OK

Entfernt das Zustimmungscookie aus Ihrem Browser.